Houtketels op CV – economisch, betrouwbaar en traditioneel verwarmen voor huizen en bedrijven
Houtketels op CV – economisch, betrouwbaar en traditioneel verwarmen voor huizen en bedrijven
Verwarmen met hout blijft een van de meest stabiele en economisch verantwoorde oplossingen voor huishoudens. In tijden van fluctuerende energieprijzen en markt onzekerheid, zoeken veel huiseigenaren en eigenaren van grotere panden naar een betrouwbaar systeem dat hoge prestaties levert, voorspelbare kosten biedt en langdurige werking garandeert. Dit is precies waarom Houtketels op CV nog steeds een belangrijke plaats innemen onder de favoriete verwarmingsoplossingen.
Dit type verwarming wordt gekenmerkt door een hoog rendement wanneer het vermogen correct wordt gekozen en de installatie goed is ontworpen. Een bijkomend voordeel is de beschikbaarheid van brandhout in veel regio's, waardoor de operationele kosten gemakkelijker te plannen zijn. Met goed onderhoud en correct gebruik kan een houtketel jarenlang stabiele verwarming bieden zonder de noodzaak van complexe automatisering of dure infrastructuur.
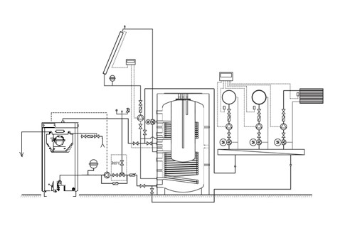
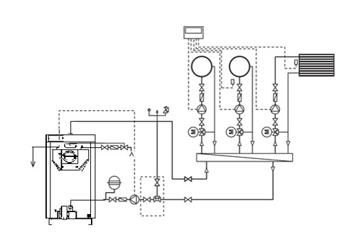
.png)
Wat is een houtketel op CV
Een houtketel op CV is een verwarmingsapparaat voor een centraal verwarmingssysteem dat vaste brandstof (brandhout) gebruikt om water te verwarmen. Het verwarmde water circuleert via een leidingsysteem naar radiatoren of vloerverwarming en zorgt voor een gelijkmatige temperatuur in het hele gebouw.
In tegenstelling tot standaardkachels en open haarden is de ketel ontworpen om een heel huis of gebouw te verwarmen, niet slechts één ruimte. Het functioneert als de belangrijkste warmtebron en kan worden gecombineerd met een buffervat voor een hoger rendement en minder vaak bijvullen. Afhankelijk van het model en de constructie kunnen ketels verschillende niveaus van efficiëntie en verbrandingsregeling bieden. Moderne oplossingen zijn ontworpen om de houtverbranding te optimaliseren en warmteverlies te verminderen, waardoor ze geschikt zijn voor zowel nieuwbouw als het upgraden van bestaande verwarmingsinstallaties.

Hoe een houtketel op CV werkt
Het werkingsproces van houtketels op CV is gebaseerd op het verbranden van vaste brandstof en het overdragen van de geproduceerde warmte aan een watermantel (warmtewisselaar). Nadat het brandhout is aangestoken, wordt warmte geproduceerd en gebruikt om het water in de ketel te verwarmen. Een circulatiepomp verdeelt het hete water door het verwarmingssysteem, waarna het afgekoelde water terugkeert naar de ketel om opnieuw te worden verwarmd.
Moderne modellen kunnen worden onderverdeeld in enkele hoofdtypen:
- Standaard ketels met natuurlijke trek
- Ketels met een ventilator voor geforceerde trek
- Pyrolyse (vergassing) ketels met een hoger rendement
Pyrolyseketels zorgen voor een meer volledige verbranding van houtgassen, wat leidt tot een lager brandstofverbruik en minder emissies.


Geschikte toepassingen voor houtketels op CV
Houtketels op CV zijn geschikt voor panden met een watergedragen verwarmingssysteem. Ze worden het meest gebruikt in:
- Vrijstaande huizen
- Villa's en landelijke woningen
- Kleine appartementencomplexen
- Werkplaatsen en magazijnen
- Industriële hallen
- Publieke gebouwen in niet-gasrijke gebieden
Ze zijn vooral efficiënt in regio's waar brandhout gemakkelijk toegankelijk en kosteneffectief is.
Hoe het juiste vermogen te kiezen
Het selecteren van het juiste vermogen is een van de belangrijkste factoren bij de aanschaf van een ketel. Onvoldoende vermogen zal geen adequaat comfort bieden, terwijl een te hoog vermogen leidt tot inefficiënte werking en onnodig brandstofverbruik.
De volgende factoren worden meegenomen bij het bepalen van het vereiste vermogen:
- Totaal vloeroppervlak
- Plafondhoogte
- Thermische isolatie
- Type ramen en deuren
- Klimaatzone
Als algemene richtlijn kan 1 kW vermogen ongeveer 10 m² verwarmen bij goede isolatie en standaard plafondhoogte. Bijvoorbeeld, voor een huis van 150 m² wordt meestal een ketel met een vermogen tussen 15 en 20 kW aanbevolen.
Belangrijkste voordelen van houtketels op CV
Houtketels op CV worden geprefereerd vanwege meerdere belangrijke voordelen. Ze bieden economische verwarming en een lange levensduur, vooral wanneer ze zijn gemaakt van hoogwaardig staal.
De belangrijkste voordelen zijn:
- Lage brandstofkosten
- Hoge verwarmingscapaciteit
- Geschikt voor grote oppervlakken
- Relatieve onafhankelijkheid van energieleveranciers
- Lager initiële investering in vergelijking met geautomatiseerde systemen zoals Pelletketels of complete Pellet kits
Nadelen om rekening mee te houden
Ondanks hun voordelen vereisen houtketels op CV meer betrokkenheid van de gebruiker. Ze zijn niet volledig geautomatiseerd en hebben regelmatig onderhoud nodig.
De belangrijkste nadelen zijn:
- Handmatige brandstoftoevoer
- Opslagruimte nodig voor brandhout
- Periodiek as verwijderen
- Lager comfortniveau in vergelijking met op pellet gebaseerde systemen, zoals Pelletkachels CV
Verschil tussen houtketels op CV en pelletketels
Pelletketels zijn een modern alternatief voor traditionele Houtketels op CV. Het belangrijkste verschil ligt in het automatiseringsniveau en de manier van brandstoftoevoer.
Een houtketel op CV wordt handmatig geladen en vereist regelmatig toezicht. De initiële investering is meestal lager en de brandstof is vaak goedkoper en breder beschikbaar.
Een pelletketel beschikt over automatische brandstoftoevoer, elektronische regeling en programmeerbare bedrijfsmodi. Dit biedt hoger comfort en preciezere temperatuurregeling, maar de initiële investering is hoger.
De keuze tussen de twee opties hangt af van het budget, het gewenste automatiseringsniveau en de beschikbaarheid van brandstof in de specifieke regio.
Verschil tussen een houtketel op CV en pelletkachels CV
Een Pelletkachels CV kan ook worden aangesloten op een verwarmingssysteem, maar heeft meestal een lager vermogen en combineert verwarming vooral met een decoratieve functie.
Een Houtketel op CV is voornamelijk ontworpen voor continue en efficiënte verwarming van een volledig gebouw, met een hoger vermogen en betere efficiëntie tijdens langdurig gebruik.
Waarop te letten vóór aankoop
Voordat u een definitieve beslissing neemt, is het belangrijk om te letten op de technische specificaties en de bouwkwaliteit.
De belangrijkste parameters om te overwegen zijn:
- Nominaal vermogen (kW)
- Rendement (thermisch rendement)
- Staal dikte
- Type verbrandingskamer
- Aanwezigheid van ventilator
- Compatibiliteit met een buffervat
- Garantiebepalingen en serviceondersteuning
Welke brandhoutsoort is het meest geschikt
Het rendement van een houtketel op CV hangt niet alleen af van het model, maar ook van de kwaliteit van de gebruikte brandstof. De beste resultaten worden bereikt met droog, hard hout zoals:
- Eik
- Beuk
- Haagbeuk
Het vochtgehalte van het brandhout moet onder 20% liggen, omdat nat hout het rendement vermindert en roetophoping vergroot.

Veelgestelde vragen (FAQ)
Hoe vaak moet een houtketel op CV worden bijgevuld?
Meestal is bijvullen elke 3 tot 6 uur nodig, afhankelijk van het vermogen van de ketel, de buitentemperaturen en de isolatie van het gebouw.
Kan een houtketel op CV zonder elektriciteit werken?
Sommige modellen met natuurlijke circulatie kunnen zonder elektriciteit werken, maar de meeste systemen gebruiken een circulatiepomp en hebben stroom nodig.
Is een speciale schoorsteen nodig?
Ja, een correct gedimensioneerde schoorsteen is essentieel voor goede trek en veilige werking van het systeem.
Wat is de levensduur van een ketel?
Met goed onderhoud kan een ketel tussen de 10 en 20 jaar meegaan.
Hoeveel brandhout is nodig voor één verwarmingsseizoen?
Gemiddeld heeft een huis van 120–150 m² tussen de 8 en 15 kubieke meter brandhout nodig, afhankelijk van de isolatie en klimaatomstandigheden.
Houtketels op CV blijven een praktische en economische verwarmingsoplossing, vooral in gebieden zonder gasinfrastructuur. Ze leveren hoog vermogen en relatief lage bedrijfskosten, maar vereisen meer betrokkenheid van de gebruiker.
De juiste keuze hangt af van de grootte van het pand, het beschikbare budget en het gewenste comfortniveau. Correct geselecteerd en professioneel geïnstalleerd kan een houtketel op CV jarenlang betrouwbare verwarming bieden.
Zie ook:



